Restaurant Pasternak

Kyiv, Ukraine

Location

180 m2

Area

2015

Year

About project

Location:

Ukraine, Kyiv

Total area:

180 m2

Year of implementation:

2015

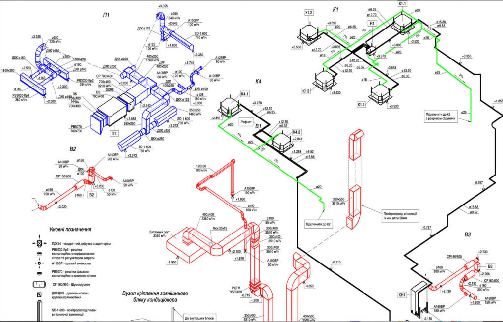
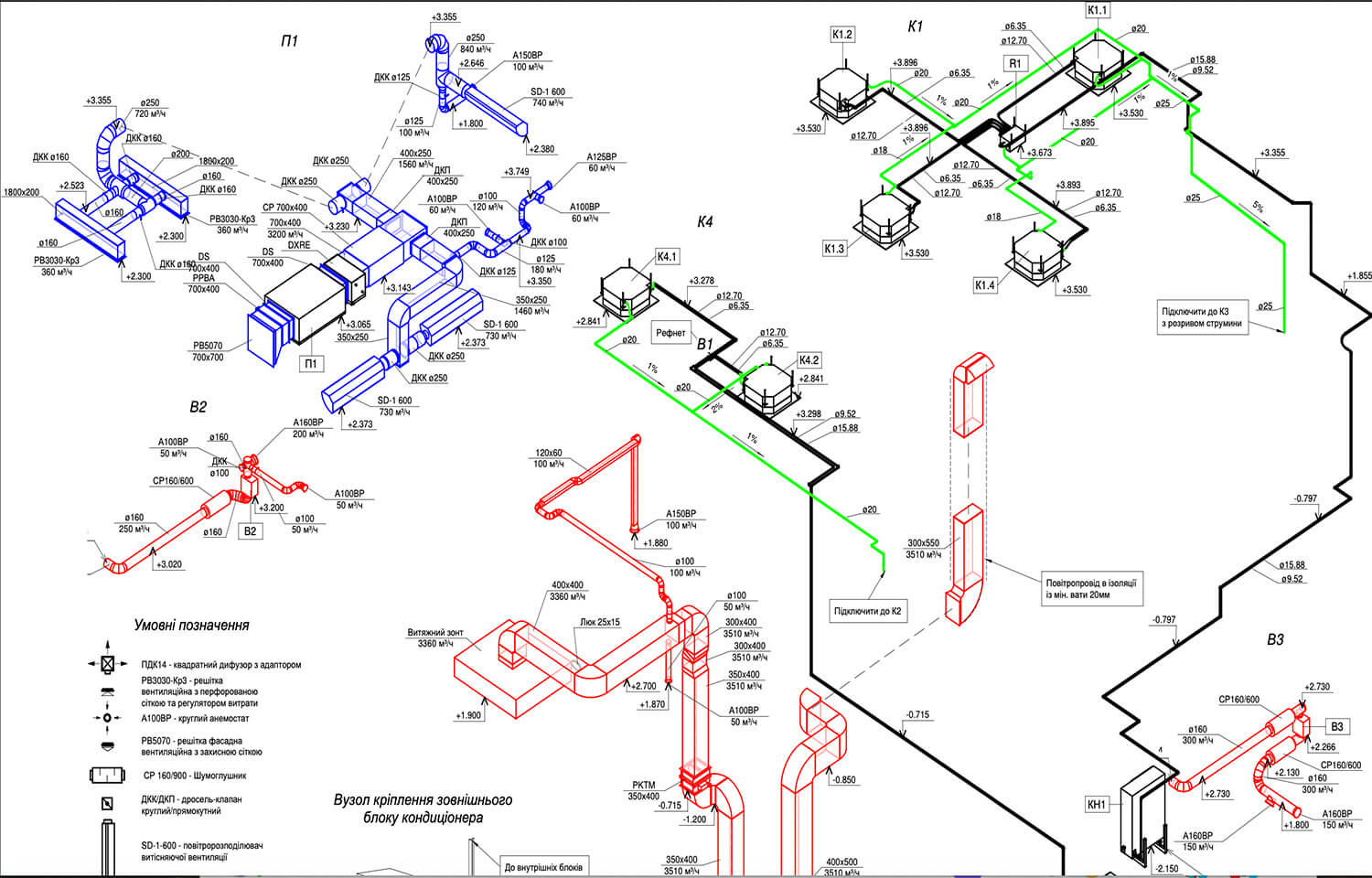
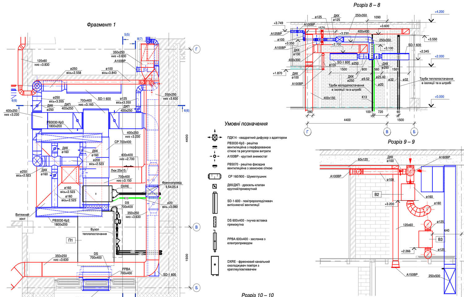
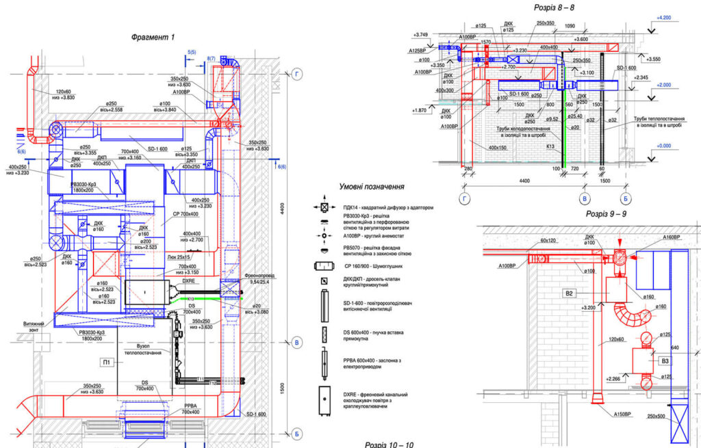
Complex of works:

HVAC

Equipment for hall ventilation: Systemair Topvex TX09

Equipment for kitchen ventilationSystemair TA4500, Systemair MUB 450EC

Equipment for air conditioning: Mitsubishi Electric VRF system

Heat distribution system: Purmo

Air distribution system: Systemair

Do you need ANY help?

or want to get a consultation?

Scroll to Top