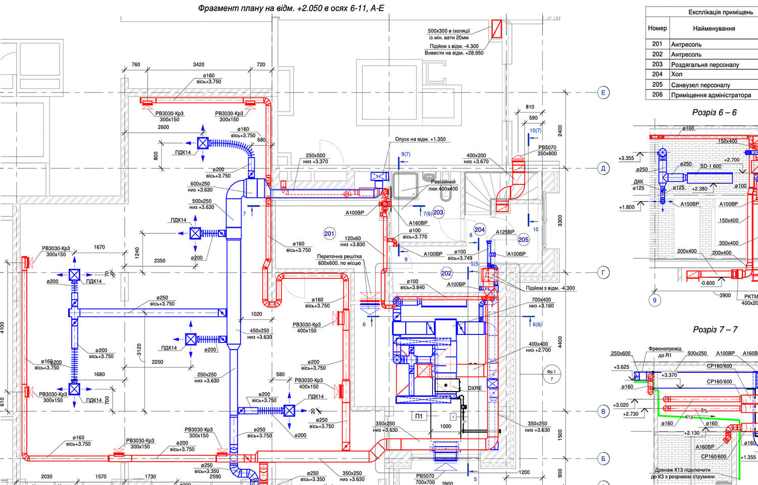
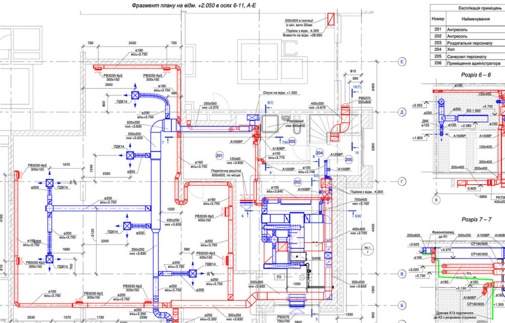
Wellness Center «Sandler» Kyiv, Ukraine Location 2200 m2 Area 2019 Year About project Location: Ukraine, Kyiv Total area: 2200 m2 Year of implementation: 2019 Complex of works: HVAC • Ventilation equipment: SALDA • Air conditioning equipment: SAKATA VRF system with a total capacity of 250 kW • Air distribution system: Systeair Do you need ANY help? or want to get a consultation? CONTACT US